参考資料防災&セキュリティに優れたエレベーターシステム
地震時、初期微動を感知し、すばやく最寄階へ誘導、またエントランスの解錠に連動して1Fへエレベーターを呼び寄せるなど防災と快適性に優れたエレベーターを採用。2種類のドアセンサーで車いすの方もドアに挟まれる心配がなくスムーズに乗降できます。
使いやすく機能美あふれる設備機器
トップ
設備仕様
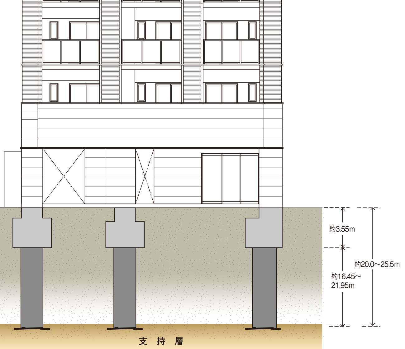
概念図当建設地の地盤調査を行い、地下約20〜25.5mに堅固な支持地盤の存在を特定。約16~21mのコンクリート杭を打設することで強固な基礎を造り、建物を足下からしっかりと支えます。


鉄筋圧接部やコンクリートなどにおいて、品質・強度検査を行っているので安心です。
【外観試験】
圧接部の形状及び寸法、圧接部の膨らみの直径・偏り・長さ・芯ずれ・折れ曲がり、さらに焼割れ・へこみ・垂れ下りなどの外観検査を技能資格者により行います。
【超音波探傷検査】
1検査ロット(1施工班1日当たりの施工量)当り、一定数量をランダムに選び、第3者機関にて超音波探傷器にて検査します。
【抜取引張試験】
現場にて抜き取った供試体(鉄筋)を第三者検査機関で引張試験機にかけ、切断されるまで引張り、基準通りの強度をもっているかを判断します。
【フレッシュコンクリート試験】
打設する前のフレッシュコンクリート(いわゆる生コン)の時点で粘度や塩分濃度、空気量などを調べ、予定値の固さと大きく違わないか確認します。同時に4週間後の検査のサンプルを採取します。
【コンクリート圧縮強度試験】
打設から4週間後に、打設時に採取したサンプルでコンクリートの圧縮強度を測定。サンプルを圧縮機で壊し、計画通りの強度になっているか確認します。
概念図「かぶり厚」とは、鉄筋を覆うコンクリートの厚みのこと。コンクリートの中性化による鉄筋の劣化防止、建物の耐久性アップを図るため、この「かぶり厚」を十分に確保しています。
概念図1㎡でおよそ2,700〜3,300トンの圧力に耐えられる強度、27〜33ニュートン(N/m㎡)以上のコンクリート強度を、設計基準強度としています。※附属建物及び土間コンクリート等は除く
※附属建物及び土間コンクリート等は除く
概念図居室内の断熱性・遮音性を高めるため「二重壁構造」を採用。外側に面したコンクリート壁の居室内側に下図の様な断熱材、空気層を設けました。
概念図置床工法により、床材を直貼りせずフロアを上げるなど、上下階の生活音の低減を実現しました。また、二重床・二重天井の採用でメンテナンスや将来のリフォーム時の自由度が高まります。

マンションでの生活は子供たちの走る足音や落下音などの音が気になります。そこで廊下・リビングダイニング・洋室の床には遮音性に優れたLL40・LH50等級のシステムフロアを採用し、生活音を軽減しています。
概念図太陽光や雨の影響が大きい屋上を断熱材ですっぽり覆うことで、昼夜の温度差が小さくなり住居部分の快適性が向上。省エネや結露対策にもなります。(一部を除く)
概念図
異常信号を確認した場合、管理室の情報盤からセコムへ自動的に情報を送信。その後、異常発生箇所をカメラで確認し、セコムの緊急対処員が現場に急行します。現場の状況により、110番、119番、ご指定の緊急連絡先へ通報します。
概念図防犯対策ではアプローチ、共用部、そして住戸までの動線を広く細やかにカバーします。入出に際して認証を必要とする各ゲートを設置。さまざまなアングルから安全をしっかりと守ります。
概念図火災発生時など、万が一の場合でも、警備会社との連携により、迅速な対応を実現。例えば、住戸内での火災時は出火階直上階の住宅情報盤から警報音と音声で火災をお知らせします。
参考写真5台の防犯カメラで屋内外からの侵入者や盗難、不審物などを24時間見守り続けます。
参考資料地震時、初期微動を感知し、すばやく最寄階へ誘導、またエントランスの解錠に連動して1Fへエレベーターを呼び寄せるなど防災と快適性に優れたエレベーターを採用。2種類のドアセンサーで車いすの方もドアに挟まれる心配がなくスムーズに乗降できます。
参考資料
サムターン上下にあるスイッチを押しながら回さないと解錠できず不正解錠防止や防犯に優れています。

デッドボルトが鎌形状になっていますので、バール攻撃のような破壊行為に対して高い防犯性を示します。

ドアを開けられてもドアガードが引っ掛かりとなり、侵入を防止します。
image玄関ドアには約5兆5千億通りの理論違い数を有するセキュリティ性の高いF22シリンダーを採用。カード提示にてキーを複製するユーザーカード方式です。
概念図側圧により枠が鼓状に変形した場合にも枠の変形量を戸先部クリアランスでしっかり吸収します。